top of page
.jpg)
Tenth semester
Diploma
Supervisor
Trond Eide
Location
Bygdøy, Oslo
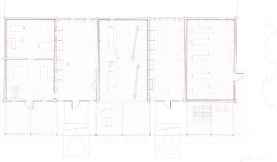
This master thesis deal with exposure and education about intangible cultural heritage. The main objective was to add new facilities for traditional craftsmenship at the Norwegian Museum of Cultural History, that would make the restoration work of the craftsmen visible to visitors. To do so, we utilized the space inside three existing buildings that are exhibited at the museum: a barn, a farmhouse and a stable.
The project was done in collaboration with Harald Seljesæter, and was nominated for the Young Talent Architecture Award 2020.
Read more about the project at
http://ytaa.miesbcn.com/work/909
bottom of page

























